1-407-575-5392
Menu

16943 Sunrise Vista Drive, Clermont, FL

NEXT
PREV
$539,000

($171/sqft)

List Status: Active
16943 Sunrise Vista Drive
Clermont, FL 34714


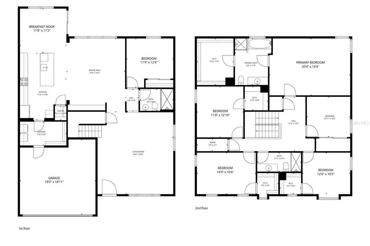
6 beds
3 baths
3158 living sqft
Top Features
  • Subdivision: Sunrise Lakes Ph Iii Sub
  • Built in  2005
  • Single Family Residence
Description
One or more photo(s) has been virtually staged. PRIVATE POOL + NO REAR NEIGHBORS + 6 BEDROOMS, the space and lifestyle you are looking for! This 6-bedroom, 3-bath home offers over 3,100 square feet of flexible living space, ideal for multi-generational living, a vacation home, working from home or simply having room to spread out. The open layout connects the kitchen and main living areas. Recent updates include brand NEW carpet, UPDATED kitchen, granite countertops, and NEWER appliances (approx. 1 year old), along with a NEW water heater. The home is also equipped with SOLAR PANELS and an AC system with a UV LIGHT feature. Step outside to a SCREENED-IN POOL + SPA WITH HEATER, overlooking a private backyard with NO REAR NEIGHBORS, which is perfect for relaxing and entertaining. Additional highlights include an extra large soaking tub and a layout designed for both everyday comfort and functionality. Located in a growing Clermont area close to shopping, dining, and daily conveniences, with continued improvements making access even EASIER.
Property Details
Additional Information
Additional Lease Restrictions
Buyer to verify any and all lease restrictions directly with the HOA
Additional Parcels YN
false
Alternate Key Folio Num
262426180200003500
Amenities Additional Fees
Buyer to verify directly with the HOA
Appliances
Dishwasher, Dryer, Microwave, Range, Refrigerator, Washer
Approval Process
Buyer to verify directly with the HOA
Association Amenities
Playground, Pool
Association Approval Required YN
1
Association Email
contact@hoaemt.com
Association Fee
311
Association Fee Frequency
Semi-Annually
Association Fee Requirement
Required
Association URL
https://sunriselakes.org/contact.html
Association YN
true
Attached Garage YN
true
Bathrooms Total Integer
3
Building Area Source
Public Records
Building Area Total
3908
Building Area Total Srch SqM
363.06
Building Area Units
Square Feet
Calculated List Price By Calculated SqFt
170.68
Carport YN
false
Community Features
Playground, Pool
Construction Materials
Block, Brick, Stucco
Cooling
Central Air
Country
US
Current Price
539000.00
Direction Faces
East
Exterior Features
Sidewalk, Sliding Doors
Fireplace YN
false
Flood Zone Code
X
Flood Zone Date
2012-12-18
Flood Zone Panel
12069C0750E
Flooring
Carpet, Tile
Foundation Details
Slab
Furnished
Unfurnished
Garage Spaces
2
Garage YN
true
Green Energy Generation
Solar
Heating
Central
Interior Features
Built-in Features, Ceiling Fans(s), Eat-in Kitchen, Kitchen/Family Room Combo, Living Room/Dining Room Combo, Open Floorplan, Walk-In Closet(s)
Internet Address Display YN
true
Internet Automated Valuation Display YN
true
Internet Consumer Comment YN
true
Internet Entire Listing Display YN
true
Laundry Features
Inside, Laundry Room
Levels
One
List AOR
Orlando Regional
Living Area Meters
293.39
Living Area Source
Public Records
Living Area Units
Square Feet
Lot Size Acres
0.15
Lot Size Square Feet
6522
Lot Size Square Meters
606
Modification Timestamp
2026-03-26T19:34:10.472Z
Monthly HOA Amount
51.83
New Construction YN
false
Occupant Type
Vacant
Ownership
Fee Simple
Parcel Number
26-24-26-1802-000-03500
Patio And Porch Features
Covered, Front Porch, Rear Porch, Screened
Pet Restrictions
Buyer to verify any and all pet restrictions directly with the HOA
Pets Allowed
Yes
Pool Private YN
true
Postal Code Plus 4
4976
Price Change Timestamp
2026-03-26T14:04:54.000Z
Public Survey Range
26E
Public Survey Section
26
RATIO Current Price By Calculated SqFt
170.68
Realtor Info
As-Is
Road Surface Type
Paved
Roof
Shingle
Room Count
3
Senior Community YN
false
Sewer
Public Sewer
Showing Requirements
ShowingTime
Spa Features
In Ground
Spa YN
true
Status Change Timestamp
2026-03-26T14:04:54.000Z
Stories Total
1
Tax Annual Amount
5809.52
Tax Block
000
Tax Book Number
51-92-94
Tax Legal Description
SUNRISE LAKES PHASE III PB 51 PG 92-94 LOT 35 ORB 5267 PG 464 ORB 6192 PG 685
Tax Lot
35
Tax Year
2025
Total Acreage
0 to less than 1/4
Total Annual Fees
622.00
Total Monthly Fees
51.83
Township
24S
Universal Property Id
US-12069-N-262426180200003500-R-N
Unparsed Address
16943 SUNRISE VISTA DR
Utilities
Public
Water Source
Public
Waterfront YN
false
Zoning
PUD
Neighborhood Map
Popup

Property Photos
Listing Photo
Listing Photo
Listing Photo
Listing Photo
Listing Photo
Listing Photo
Listing Photo
Listing Photo
Listing Photo
Listing Photo
Listing Photo
Listing Photo
Listing Photo
Listing Photo
Listing Photo
Listing Photo
Listing Photo
Listing Photo
Listing Photo
Listing Photo
Listing Photo
Listing Photo
Listing Photo
Listing Photo
Listing Photo
Listing Photo
Listing Photo
Listing Photo
Listing Photo
Listing Photo
Listing Photo
Listing Photo
Listing Photo
Listing Photo
Listing Photo
Listing Photo
Listing Photo
Listing Photo
Listing Photo
Listing Photo
Listing Photo
Listing Photo
Listing Photo
Listing Photo
Listing Photo
Listing Photo
Listing Photo
Listing Photo
Listing Photo
Listing Photo
Listing Photo
Listing Photo
Listing Photo
Listing Photo
Listing Photo
Listing Photo
Listing Photo
Listing Photo
Listing Photo
Listing Photo
Listing Photo
Listing Photo
Listing Photo
Listing Photo
Listing Photo
Listing Photo
Listing Photo
Listing Photo
Listing Photo
Listing Photo
Listing Photo
Listing Photo
Listing Photo
Listing Photo
Listing Photo
Listing Photo
Listing Photo
Listing Photo
Listing Photo
Listing Photo
Listing Photo
Listing Photo
Listing Photo
Listing Photo
Listing Photo
Listing Photo
Listing Photo
Listing Photo
Listing Photo
Listing Photo
Listing Photo
Listing Photo
Listing Photo
Listing Photo
Listing Photo
Listing Photo
Listing Photo
Listing Photo
Listing Photo
Listing Photo
Listing Photo
Listing Photo
Listing Photo
Listing Photo
Listing Photo
Listing Photo
Listing Photo
Listing Photo
Listing Photo
Listing Photo
Listing Photo
Listing Photo
Listing Photo
Listing Photo
Listing Photo
Listing Photo
Listing Photo
Listing Photo
Listing Photo
Listing Photo
Listing Photo
Listing Photo
Listing Photo
Listing Photo
Listing Photo
Listing Photo
Listing Photo
Listing Photo
Listing Photo
Listing Photo
Listing Photo
Listing Photo
Listing Photo
Listing Photo
Listing Photo
Listing Photo
Listing Photo
Listing Photo
Listing Photo
Listing Photo
Listing Photo
Listing Photo
Listing Photo
Listing Photo
Listing Photo
Listing Photo
Listing Photo
Listing Photo
Listing Photo
Listing Photo
Listing Photo
Listing Photo
Listing Photo
Listing Photo
Listing Photo
Listing Photo

MLS #MFRO6390340 Listing courtesy of Real Broker, Llc provided by Stellar MLS.

Similar Listings

$521,340
6040 Meditation Drive
Clermont
6BR/3BA
| Pending
$522,340
6073 Meditation Drive
Clermont
6BR/3BA
| Pending
$530,340
6061 Meditation Drive
Clermont
6BR/3BA
| Pending
$544,340
6048 Meditation Drive
Clermont
6BR/3BA
| Active



All listing information is deemed reliable but not guaranteed and should be independently verified through personal inspection by appropriate professionals. Listings displayed on this website may be subject to prior sale or removal from sale; availability of any listing should always be independent verified. Listing information is provided for consumer personal, non-commercial use, solely to identify potential properties for potential purchase; all other use is strictly prohibited and may violate relevant federal and state law. The source of the listing data is as follows: Stellar MLS (updated 3/26/26 5:43 PM) |

Listing Search



Translate Tool

Featured Listings
Astatula Real Estate
$599,000
6 BED
3 BATH
LOOK no FURTHER, You have found a Beautiful 6 Bedroom 3 Bath Home Listed in the Beautiful Town of Astatula, NO HOA but a... Read More
Astatula Real Estate
$548,990
4 BED
3 BATH
Pre-Construction. To be built. Introducing Stillwater Cove – A Brand-New Lakefront Community in Astatula, Florida! With ... Read More
Astatula Real Estate
$975,000
2 BED
1 BATH
Create your own private family compound on 25 acres of Lake County paradise. This property is fully agricultural-zoned a... Read More
Astatula Real Estate
$552,990
4 BED
3 BATH
Under Construction. Introducing Stillwater Cove – A New Lakefront Community in Astatula, Florida! Featuring ½-acre homes... Read More
Astatula Real Estate
$634,990
4 BED
3 BATH
Under Construction. Introducing Stillwater Cove – A Brand-New Lakefront Community -Featuring ½-acre homesites, sidewalk-... Read More
Astatula Real Estate
$1,100,000
4 BED
4 BATH
Welcome to a truly rare custom-built estate offering strength, privacy, and lifestyle versatility on 12.1 acres in beaut... Read More
Astatula Real Estate
$615,000
4 BED
3 BATH
Under contract-accepting backup offers. Experience the freedom of wide open space and relaxed country living on this bea... Read More
Astatula Real Estate
$1,190,000
4 BED
3 BATH
Pre-Construction. To be built. LAKEFRONT LOT…**Experience lakefront living on the Harris Chain of Lakes in Astatula, Flo... Read More
Astatula Real Estate
$1,100,000
4 BED
4 BATH
Discover the perfect blend of upscale living and country tranquility with this exceptional 4-bedroom, 4-bathroom custom ... Read More
Clermont Real Estate
$599,000
4 BED
2 BATH
Huge $51,000 price reduction and up to $10,000 in concessions. This charming 2606sqft Cape Cod inspired home is perched ... Read More
Contact Wendy Morris

407-575-5392

Wendy Morris LLC

Licensed in the State of Florida
BK 3146762
16797 Broadwater Avenue
Winter Garden, Florida 34787

Your privacy is our utmost concern. We will never sell your personal information. Privacy Policy
©2026 clermontluxuryproperty.com - all rights reserved. | Site Map