1-407-575-5392
Menu

4614 Cragmere Loop, Clermont, FL

NEXT
PREV
$499,900

($224/sqft)

List Status: Pending
4614 Cragmere Loop
Clermont, FL 34711


4 beds
2 baths
2236 living sqft
Top Features
  • Subdivision: Hartwood Landing
  • Built in  2023
  • Single Family Residence
Description
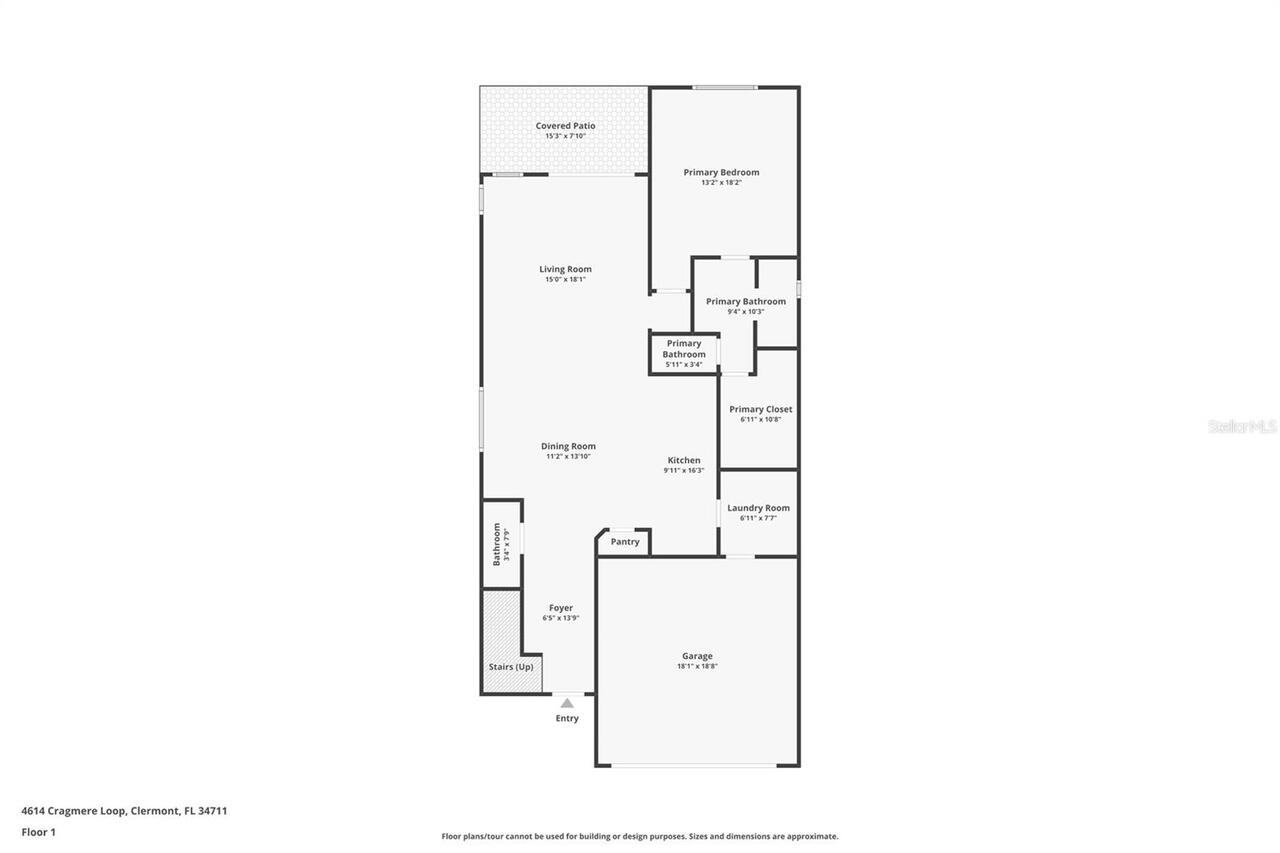
Under contract-accepting backup offers. An incredible opportunity awaits to own this highly sought-after Magnolia floor plan, perfectly positioned on one of the largest homesites in the community. Offered by the original owner and maintained in like-new condition, this home is priced to sell and represents exceptional value at this price point. From the moment you arrive, you will appreciate the spacious setting and added privacy with no direct rear neighbors, creating a peaceful backdrop for everyday living. Inside, the home showcases a bright and open layout designed for both comfort and functionality, highlighted by wood look tile flooring throughout the main living areas and an abundance of natural light. The thoughtfully designed floor plan features a desirable first-floor owner’s suite, offering convenience and privacy. The suite includes a large walk-in shower and dual vanities. The open kitchen was incredibly designed for everyday living and food preparation. Built in oven, cooktop with vented hood, large island and plenty of storage making this the true heart of the home, Built with energy efficiency in mind, this home provides modern construction benefits that help keep utility costs down while enhancing year-round comfort. The community itself adds even more appeal, featuring a resort-style pool just a short distance away and high-speed fiber internet included in the low HOA fees, delivering both lifestyle and value. Ideally located in a highly regarded K–12 school district, the home is just minutes from an array of shopping, dining, and everyday conveniences in every direction. With Walt Disney World less than 20 minutes away, you are never far from world-class entertainment and attractions. This is truly a standout opportunity in the under $500,000 price range, offering space, privacy, and modern features rarely found at this value. Don’t miss your chance to make it yours.
Property Details
Additional Information
Additional Lease Restrictions
See CCRs
Additional Parcels YN
false
Additional Rooms
Formal Dining Room Separate, Great Room, Inside Utility
Alternate Key Folio Num
262309010100017800
Amenities Additional Fees
Community pool, playgorund and high speed fiber internet included in hoa fees. Transfer fee of $150 and there may be a capital contribution fee, buyer to confirm
Appliances
Dishwasher, Disposal, Microwave, Range
Approval Process
See CCRs
Association Amenities
Park, Playground, Pool
Association Email
info@edison-mgmt.com
Association Fee
504
Association Fee Frequency
Quarterly
Association Fee Includes
Internet
Association Fee Requirement
Required
Association YN
true
Attached Garage YN
true
Available For Lease YN
1
Bathrooms Total Integer
3
Building Area Source
Public Records
Building Area Total
2821
Building Area Total Srch SqM
262.08
Building Area Units
Square Feet
Calculated List Price By Calculated SqFt
223.57
Carport YN
false
Community Features
Community Mailbox, Deed Restrictions, Park, Playground, Pool, Street Lights
Construction Materials
Block, Stucco, Frame
Contract Status
Appraisal, Financing, Inspections
Cooling
Central Air
Country
US
Cumulative Days On Market
8
Current Price
499900.00
Direction Faces
Southwest
Elementary School
Sawgrass bay Elementary
Expected Closing Date
2026-04-06T00:00:00.000
Exterior Features
Sidewalk, Sliding Doors
Fireplace YN
false
Flood Zone Code
X
Flood Zone Date
2012-12-18
Flood Zone Panel
12069C0675E
Flooring
Carpet, Ceramic Tile
Foundation Details
Slab
Furnished
Unfurnished
Garage Spaces
2
Garage YN
true
Green Energy Efficient
Windows
Heating
Central, Electric
High School
East Ridge High
Homestead YN
1
Interior Features
Ceiling Fans(s), Kitchen/Family Room Combo, Primary Bedroom Main Floor, Solid Surface Counters, Solid Wood Cabinets, Walk-In Closet(s)
Internet Address Display YN
true
Internet Automated Valuation Display YN
true
Internet Consumer Comment YN
true
Internet Entire Listing Display YN
true
Laundry Features
Inside
Levels
Two
List AOR
Orlando Regional
Living Area Meters
207.73
Living Area Source
Public Records
Living Area Units
Square Feet
Lot Features
Oversized Lot
Lot Size Acres
0.25
Lot Size Square Feet
10741
Lot Size Square Meters
998
Middle Or Junior School
Windy Hill Middle
Minimum Lease
7 Months
Modification Timestamp
2026-03-04T20:26:11.095Z
Monthly HOA Amount
168.00
New Construction YN
false
Occupant Type
Vacant
Other Equipment
Irrigation Equipment
Ownership
Fee Simple
Parcel Number
09-23-26-0101-000-17800
Patio And Porch Features
Rear Porch
Pet Restrictions
See CCRs
Pets Allowed
Yes
Pool Private YN
false
Postal Code Plus 4
5520
Public Survey Range
26E
Public Survey Section
09
Purchase Contract Date
2026-03-04
RATIO Current Price By Calculated SqFt
223.57
Realtor Info
As-Is
Road Surface Type
Asphalt
Roof
Shingle
Room Count
7
Senior Community YN
false
Sewer
Public Sewer
Showing Requirements
Sentri Lock Box, ShowingTime
Status Change Timestamp
2026-03-04T20:26:01.000Z
Stories Total
2
Tax Annual Amount
5116.27
Tax Book Number
77-12-15
Tax Legal Description
HARTWOOD LANDING PHASE 2 PB 77 PG 12-15 LOT 178 ORB 6120 PG 2363
Tax Lot
178
Tax Year
2025
Total Acreage
1/4 to less than 1/2
Total Annual Fees
2016.00
Total Monthly Fees
168.00
Township
23S
Universal Property Id
US-12069-N-092326010100017800-R-N
Unparsed Address
4614 CRAGMERE LOOP
Utilities
BB/HS Internet Available, Cable Connected, Public, Sewer Connected, Underground Utilities, Water Connected
Water Source
Public
Waterfront YN
false
Window Features
Double Pane Windows
Neighborhood Map
Popup

Property Photos
Listing Photo
Listing Photo
Listing Photo
Listing Photo
Listing Photo
Listing Photo
Listing Photo
Listing Photo
Listing Photo
Listing Photo
Listing Photo
Listing Photo
Listing Photo
Listing Photo
Listing Photo
Listing Photo
Listing Photo
Listing Photo
Listing Photo
Listing Photo
Listing Photo
Listing Photo
Listing Photo
Listing Photo
Listing Photo
Listing Photo
Listing Photo
Listing Photo
Listing Photo
Listing Photo
Listing Photo
Listing Photo
Listing Photo
Listing Photo
Listing Photo
Listing Photo
Listing Photo
Listing Photo
Listing Photo
Listing Photo
Listing Photo
Listing Photo
Listing Photo
Listing Photo
Listing Photo
Listing Photo
Listing Photo
Listing Photo
Listing Photo
Listing Photo
Listing Photo
Listing Photo
Listing Photo
Listing Photo
Listing Photo
Listing Photo
Listing Photo
Listing Photo
Listing Photo
Listing Photo
Listing Photo
Listing Photo
Listing Photo
Listing Photo
Listing Photo
Listing Photo
Listing Photo
Listing Photo
Listing Photo
Listing Photo
Listing Photo
Listing Photo
Listing Photo
Listing Photo
Listing Photo
Listing Photo
Listing Photo
Listing Photo
Listing Photo
Listing Photo
Listing Photo
Listing Photo
Listing Photo
Listing Photo
Listing Photo
Listing Photo
Listing Photo
Listing Photo
Listing Photo
Listing Photo
Listing Photo
Listing Photo

MLS #MFRO6384892 Listing courtesy of Re/max Prime Properties provided by Stellar MLS.

Similar Listings

$450,000
550 Disston Avenue
Clermont
4BR/2BA
| Active
$450,000
16012 Lanesboro Court
Clermont
4BR/2BA
| Active
$455,000
17428 Woodfair Drive
Clermont
4BR/2BA
| Active
$460,000
332 Summer Place Loop
Clermont
4BR/2BA
| Active



All listing information is deemed reliable but not guaranteed and should be independently verified through personal inspection by appropriate professionals. Listings displayed on this website may be subject to prior sale or removal from sale; availability of any listing should always be independent verified. Listing information is provided for consumer personal, non-commercial use, solely to identify potential properties for potential purchase; all other use is strictly prohibited and may violate relevant federal and state law. The source of the listing data is as follows: Stellar MLS (updated 3/4/26 3:32 PM) |

Listing Search



Translate Tool

Featured Listings
Astatula Real Estate
$634,990
4 BED
3 BATH
Under Construction. Introducing Stillwater Cove – A Brand-New Lakefront Community -Featuring ½-acre homesites, sidewalk-... Read More
Astatula Real Estate
$1,100,000
4 BED
4 BATH
Welcome to a truly rare custom-built estate offering strength, privacy, and lifestyle versatility on 12.1 acres in beaut... Read More
Astatula Real Estate
$615,000
4 BED
3 BATH
Under contract-accepting backup offers. Experience the freedom of wide open space and relaxed country living on this bea... Read More
Astatula Real Estate
$1,190,000
4 BED
3 BATH
Pre-Construction. To be built. LAKEFRONT LOT…**Experience lakefront living on the Harris Chain of Lakes in Astatula, Flo... Read More
Astatula Real Estate
$548,990
4 BED
3 BATH
Pre-Construction. To be built. Introducing Stillwater Cove – A Brand-New Lakefront Community in Astatula, Florida! With ... Read More
Astatula Real Estate
$975,000
2 BED
1 BATH
Create your own private family compound on 25 acres of Lake County paradise. This property is fully agricultural-zoned a... Read More
Astatula Real Estate
$599,000
6 BED
3 BATH
Under contract-accepting backup offers. LOOK no FURTHER, You have found a Beautiful 6 Bedroom 3 Bath Home Listed in the ... Read More
Astatula Real Estate
$552,990
4 BED
3 BATH
Pre-Construction. To be built. Introducing Stillwater Cove – A New Lakefront Community in Astatula, Florida! Featuring ½... Read More
Astatula Real Estate
$1,100,000
4 BED
4 BATH
Discover the perfect blend of upscale living and country tranquility with this exceptional 4-bedroom, 4-bathroom custom ... Read More
Clermont Real Estate
$799,000
4 BED
3 BATH
Step into elevated living in this stunning 3,032 sq ft residence in desirable Clermont, where luxury upgrades and though... Read More
Contact Wendy Morris

407-575-5392

Wendy Morris LLC

Licensed in the State of Florida
BK 3146762
16797 Broadwater Avenue
Winter Garden, Florida 34787

Your privacy is our utmost concern. We will never sell your personal information. Privacy Policy
©2026 clermontluxuryproperty.com - all rights reserved. | Site Map