1-407-575-5392
Menu

2631 Cedaridge Circle, Clermont, FL

NEXT
PREV
$465,000

($231/sqft)

List Status: Active
2631 Cedaridge Circle
Clermont, FL 34711


4 beds
3 baths
2016 living sqft
Top Features
  • Subdivision: Hills Clermont Ph 02
  • Built in  2002
  • Single Family Residence
Description
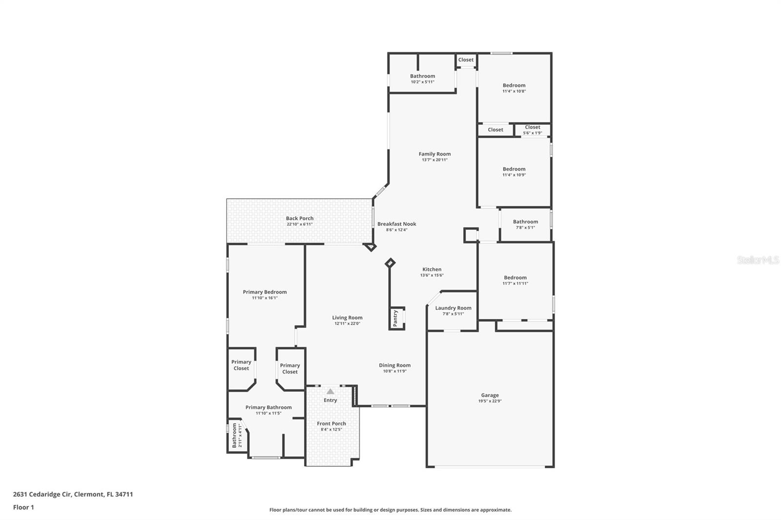
Very motivated seller; bring your offer!!! This charming and well-maintained home in a gated community with low HOA fees offers beautifully defined spaces and a great flow. It is situated on an oversized corner lot with a backyard that would charm the gardening enthusiasts with its many and varied fruit and vegetable trees – mangoes, avocadoes, papayas, moringa and citrus trees. The new roof was installed in 2023. The A/C unit was installed in 2022, and the gas water heater is also new. There is a natural gas option in the community. As you enter the home, you step into the formal living room and dining room with easy access to the backyard through French doors. With a split floor plan, the spacious primary suite with his and her walk-in closets and a spacious bathroom is on one side of the house. On the other side there are 3 more bedrooms and 2 bathrooms. The recently renovated kitchen has beautiful granite countertops, all stainless-steel appliances, new stove and new refrigerator. This area opens directly to both the breakfast nook and the family room. This space has a lot of natural light from the windows and French doors that lead to the lush backyard. The oversized covered patio is a perfect space to enjoy the outdoors. Easy access and proximity to shopping, grocery store and restaurants. Don’t miss the opportunity to own this charming home. Schedule a showing appointment today!
Property Details
Additional Information
Additional Lease Restrictions
Verify with HOA
Additional Parcels YN
false
Additional Rooms
Family Room, Formal Dining Room Separate, Formal Living Room Separate, Inside Utility
Alternate Key Folio Num
262227080500022600
Appliances
Cooktop, Dishwasher, Disposal, Dryer, Exhaust Fan, Gas Water Heater, Microwave, Refrigerator, Washer
Architectural Style
Traditional
Association Amenities
Gated
Association Email
evargas@empirehoa.com
Association Fee
453.98
Association Fee Frequency
Annually
Association Fee Requirement
Required
Association URL
www.hillsofclermont.com
Association YN
true
Attached Garage YN
true
Available For Lease YN
1
Bathrooms Total Integer
3
Building Area Source
Public Records
Building Area Total
2857
Building Area Total Srch SqM
265.42
Building Area Units
Square Feet
Calculated List Price By Calculated SqFt
230.65
Carport YN
false
Community Features
Deed Restrictions, Gated Community - No Guard, Sidewalks
Construction Materials
Block, Stucco
Cooling
Central Air
Country
US
Cumulative Days On Market
78
Current Price
465000.00
Direction Faces
West
Elementary School
Lost Lake Elem
Exterior Features
Garden, Sidewalk
Fireplace YN
false
Flood Zone Code
x
Flooring
Ceramic Tile, Laminate, Travertine
Foundation Details
Slab
Furnished
Unfurnished
Garage Spaces
2
Garage YN
true
Heating
Electric
High School
East Ridge High
Homestead YN
1
Interior Features
Ceiling Fans(s), Eat-in Kitchen, High Ceilings, Kitchen/Family Room Combo, Primary Bedroom Main Floor, Split Bedroom, Thermostat, Walk-In Closet(s), Window Treatments
Internet Address Display YN
true
Internet Automated Valuation Display YN
true
Internet Consumer Comment YN
false
Internet Entire Listing Display YN
true
Laundry Features
Electric Dryer Hookup, Inside, Laundry Room, Washer Hookup
Lease Restrictions YN
1
Levels
One
List AOR
Orlando Regional
Living Area Meters
187.29
Living Area Source
Public Records
Living Area Units
Square Feet
Lot Features
Cleared, Corner Lot, Landscaped, Sidewalk, Paved, Private
Lot Size Acres
0.21
Lot Size Square Feet
8946
Lot Size Square Meters
831
Middle Or Junior School
Windy Hill Middle
Minimum Lease
8-12 Months
Modification Timestamp
2026-03-07T21:07:24.992Z
Monthly HOA Amount
37.83
New Construction YN
false
Occupant Type
Vacant
Other Equipment
Irrigation Equipment
Ownership
Fee Simple
Parcel Number
27-22-26-0805-000-22600
Patio And Porch Features
Covered, Patio
Pet Restrictions
Verify with HOA
Pets Allowed
Yes
Pool Private YN
false
Postal Code Plus 4
7142
Previous List Price
470000
Price Change Timestamp
2026-03-06T13:26:07.000Z
Public Survey Range
26E
Public Survey Section
27
RATIO Current Price By Calculated SqFt
230.65
Realtor Info
As-Is, Docs Available, Sign
Road Responsibility
Private Maintained Road
Road Surface Type
Asphalt, Paved
Roof
Shingle
Room Count
4
Senior Community YN
false
Sewer
Public Sewer
Showing Requirements
Sentri Lock Box, Appointment Only, Gate Code Required, Go Direct, ShowingTime
Status Change Timestamp
2025-12-19T12:49:12.000Z
Stories Total
1
Tax Annual Amount
1571
Tax Block
000
Tax Book Number
44-27-28
Tax Legal Description
CLERMONT HILLS OF CLERMONT PHASE TWO SUB LOT 226 PB 44 PGS 27-28 ORB 2086 PG 176 ORB 5315 PG 1173
Tax Lot
226
Tax Year
2025
Total Acreage
0 to less than 1/4
Total Annual Fees
453.98
Total Monthly Fees
37.83
Township
22S
Universal Property Id
US-12069-N-272226080500022600-R-N
Unparsed Address
2631 CEDARIDGE CIR
Utilities
Electricity Connected, Natural Gas Available, Public, Sewer Connected, Water Connected
Vegetation
Fruit Trees, Mature Landscaping, Trees/Landscaped
Water Source
Public
Waterfront YN
false
Zoning
PUD
Neighborhood Map
Popup

Property Photos
Listing Photo
Listing Photo
Listing Photo
Listing Photo
Listing Photo
Listing Photo
Listing Photo
Listing Photo
Listing Photo
Listing Photo
Listing Photo
Listing Photo
Listing Photo
Listing Photo
Listing Photo
Listing Photo
Listing Photo
Listing Photo
Listing Photo
Listing Photo
Listing Photo
Listing Photo
Listing Photo
Listing Photo
Listing Photo
Listing Photo
Listing Photo
Listing Photo
Listing Photo
Listing Photo
Listing Photo
Listing Photo
Listing Photo
Listing Photo
Listing Photo
Listing Photo
Listing Photo
Listing Photo
Listing Photo
Listing Photo
Listing Photo
Listing Photo
Listing Photo
Listing Photo
Listing Photo
Listing Photo
Listing Photo
Listing Photo
Listing Photo
Listing Photo
Listing Photo
Listing Photo
Listing Photo
Listing Photo
Listing Photo
Listing Photo
Listing Photo
Listing Photo
Listing Photo
Listing Photo
Listing Photo
Listing Photo
Listing Photo
Listing Photo
Listing Photo
Listing Photo
Listing Photo
Listing Photo
Listing Photo
Listing Photo

MLS #MFRO6363928 Listing courtesy of Preferred Real Estate Brokers provided by Stellar MLS.

Similar Listings

$424,995
3542 Wind River Run
Clermont
4BR/3BA
| Active
$425,000
3132 Ibis Hill Street
Clermont
4BR/3BA
| Pending
$433,000
16813 Lazy Breeze Loop
Clermont
4BR/3BA
| Active
$434,990
17444 Hidden Forest Drive
Clermont
4BR/3BA
| Active



All listing information is deemed reliable but not guaranteed and should be independently verified through personal inspection by appropriate professionals. Listings displayed on this website may be subject to prior sale or removal from sale; availability of any listing should always be independent verified. Listing information is provided for consumer personal, non-commercial use, solely to identify potential properties for potential purchase; all other use is strictly prohibited and may violate relevant federal and state law. The source of the listing data is as follows: Stellar MLS (updated 3/23/26 8:53 PM) |

Listing Search



Translate Tool

Featured Listings
Astatula Real Estate
$548,990
4 BED
3 BATH
Pre-Construction. To be built. Introducing Stillwater Cove – A Brand-New Lakefront Community in Astatula, Florida! With ... Read More
Astatula Real Estate
$975,000
2 BED
1 BATH
Create your own private family compound on 25 acres of Lake County paradise. This property is fully agricultural-zoned a... Read More
Astatula Real Estate
$552,990
4 BED
3 BATH
Under Construction. Introducing Stillwater Cove – A New Lakefront Community in Astatula, Florida! Featuring ½-acre homes... Read More
Astatula Real Estate
$634,990
4 BED
3 BATH
Under Construction. Introducing Stillwater Cove – A Brand-New Lakefront Community -Featuring ½-acre homesites, sidewalk-... Read More
Astatula Real Estate
$1,100,000
4 BED
4 BATH
Welcome to a truly rare custom-built estate offering strength, privacy, and lifestyle versatility on 12.1 acres in beaut... Read More
Astatula Real Estate
$615,000
4 BED
3 BATH
Under contract-accepting backup offers. Experience the freedom of wide open space and relaxed country living on this bea... Read More
Astatula Real Estate
$1,190,000
4 BED
3 BATH
Pre-Construction. To be built. LAKEFRONT LOT…**Experience lakefront living on the Harris Chain of Lakes in Astatula, Flo... Read More
Astatula Real Estate
$599,000
6 BED
3 BATH
Under contract-accepting backup offers. LOOK no FURTHER, You have found a Beautiful 6 Bedroom 3 Bath Home Listed in the ... Read More
Astatula Real Estate
$1,100,000
4 BED
4 BATH
Discover the perfect blend of upscale living and country tranquility with this exceptional 4-bedroom, 4-bathroom custom ... Read More
Clermont Real Estate
$1,100,000
4 BED
3 BATH
One or more photo(s) has been virtually staged. One or more photos was virtually staged. Fabulous Waterfront Pool Home o... Read More
Contact Wendy Morris

407-575-5392

Wendy Morris LLC

Licensed in the State of Florida
BK 3146762
16797 Broadwater Avenue
Winter Garden, Florida 34787

Your privacy is our utmost concern. We will never sell your personal information. Privacy Policy
©2026 clermontluxuryproperty.com - all rights reserved. | Site Map