1-407-575-5392
Menu

162 Riggings Way, Clermont, FL

NEXT
PREV
$458,900

($190/sqft)

List Status: Active
162 Riggings Way
Clermont, FL 34711


3 beds
2 baths
2421 living sqft
Top Features
  • Subdivision: Clermont Clermont Yacht Club Ph 02
  • Built in  2006
  • Townhouse
Description
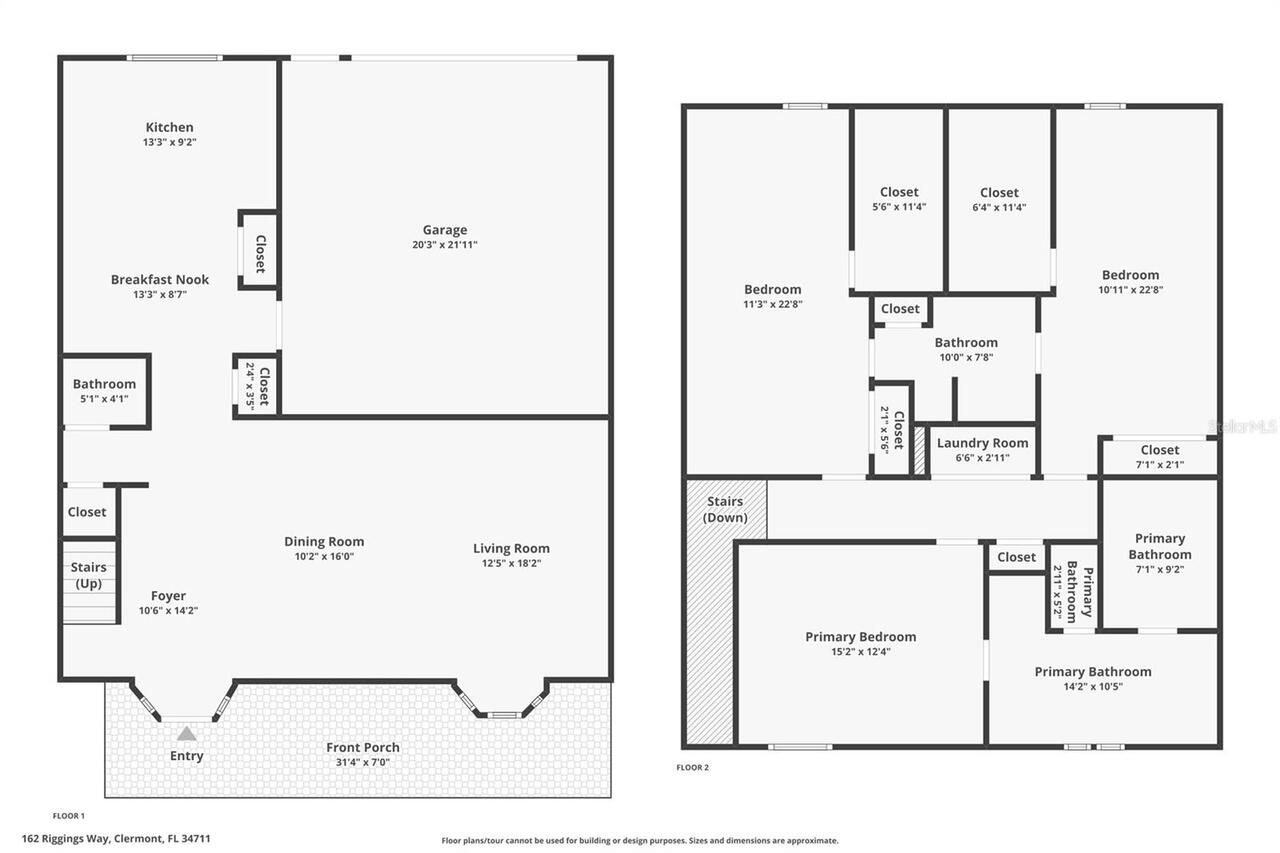
Located in the highly sought-after Yacht Club community at 162 Riggings Way, this fully remodeled 3-bedroom, 2.5-bath home with a 2-car garage offers 2,421 square feet of refined, low-maintenance living just minutes from downtown Clermont’s waterfront, restaurants, and scenic trails. For empty nesters and downsizers searching for a renovated home with lake access in Clermont, this property answers the call with uncompromising quality. Every inch has been thoughtfully reimagined. The brand-new kitchen features quartz countertops, modern cabinetry, and new appliances—creating a clean, timeless space for entertaining friends or enjoying quiet evenings at home. Luxury vinyl plank flooring flows seamlessly throughout, offering both elegance and durability without the upkeep. The bathrooms have been fully remodeled with updated finishes and fixtures that feel current yet classic. Fresh interior paint enhances the light, airy feel, and a newer roof (2023) provides long-term peace of mind—so you can focus on travel plans, hobbies, and lake days instead of projects and punch lists. With three spacious bedrooms and a flexible layout, there’s room for visiting family, a home office, or a dedicated fitness space—without the excess maintenance of a larger estate. The 2-car garage provides ample storage for bikes, paddleboards, or golf gear. Life in Yacht Club means maintenance-free living with Chain of Lakes access, plus a community pool and clubhouse that make it easy to stay active and connected. You’re moments from Clermont’s vibrant downtown waterfront, weekly farmers markets, lakeside walking trails, and boutique dining—ideal for those seeking an active, social lifestyle without sacrificing privacy. If you’ve been searching for a move-in-ready, fully remodeled home with lake access near downtown Clermont that allows you to simplify without compromising on quality, this is your opportunity. Schedule your private showing today and step confidently into your next chapter.
Property Details
Additional Information
Additional Lease Restrictions
Leasing restrictions have not been verified. It is buyer's responsibility to verify leasing restrictions with the HOA.
Additional Parcels YN
false
Alternate Key Folio Num
3829735
Appliances
Built-In Oven, Cooktop, Dishwasher, Dryer, Microwave, Refrigerator, Washer
Architectural Style
Contemporary
Association Fee
136.5
Association Fee Frequency
Monthly
Association Fee Includes
Pool
Association Fee Requirement
Required
Association YN
true
Attached Garage YN
true
Available For Lease YN
1
Bathrooms Total Integer
3
Building Area Source
Public Records
Building Area Total
3136
Building Area Total Srch SqM
291.34
Building Area Units
Square Feet
Calculated List Price By Calculated SqFt
189.55
Carport YN
false
Community Features
Clubhouse, Gated Community - No Guard, Pool
Construction Materials
Block, Vinyl Siding
Cooling
Central Air
Country
US
Cumulative Days On Market
43
Current Price
458900.00
Direction Faces
West
Exterior Features
Sidewalk
Fireplace YN
false
Flood Zone Code
X
Flood Zone Date
2012-12-18
Flood Zone Panel
12069C0560E
Flooring
Luxury Vinyl
Foundation Details
Slab
Furnished
Unfurnished
Garage Spaces
2
Garage YN
true
Heating
Central
Homestead YN
1
Interior Features
Ceiling Fans(s), Eat-in Kitchen, PrimaryBedroom Upstairs, Stone Counters, Walk-In Closet(s)
Internet Address Display YN
true
Internet Automated Valuation Display YN
true
Internet Consumer Comment YN
true
Internet Entire Listing Display YN
true
Laundry Features
Laundry Closet
Lease Restrictions YN
1
Levels
Two
List AOR
Lake and Sumter
Living Area Meters
224.92
Living Area Source
Public Records
Living Area Units
Square Feet
Lot Features
Paved
Lot Size Acres
0.09
Lot Size Square Feet
3710
Lot Size Square Meters
345
Minimum Lease
6 Months
Modification Timestamp
2026-04-16T12:15:09.025Z
Monthly HOA Amount
136.50
New Construction YN
false
Number Of Pets
3
Occupant Type
Owner
Ownership
Fee Simple
Parcel Number
18-22-26-0076-000-15200
Patio And Porch Features
Front Porch
Pet Restrictions
Pet restrictions have not been verified. It is buyer's responsibility to verify pet restrictions with the HOA.
Pets Allowed
Number Limit, Yes
Pool Private YN
false
Postal Code Plus 4
2472
Previous List Price
465000
Price Change Timestamp
2026-03-26T14:25:25.000Z
Public Survey Range
26
Public Survey Section
18
RATIO Current Price By Calculated SqFt
189.55
Road Surface Type
Asphalt
Roof
Shingle
Room Count
7
Senior Community YN
false
Sewer
Public Sewer
Showing Requirements
Appointment Only, ShowingTime
Status Change Timestamp
2026-03-04T21:59:48.000Z
Tax Annual Amount
2034
Tax Block
000
Tax Book Number
53-5-6
Tax Legal Description
CLERMONT YACHT CLUB PHASE 2 PB 53 PG 5-6 LOT 152--LESS N 2 FT--N 2 FT OF LOT 153 ORB 3144 PG 669
Tax Lot
152
Tax Year
2025
Total Acreage
0 to less than 1/4
Total Annual Fees
3704.40
Total Monthly Fees
308.70
Township
22
Universal Property Id
US-12069-N-182226007600015200-R-N
Unparsed Address
162 RIGGINGS WAY
Utilities
Electricity Connected, Sewer Connected
Water Source
Public
Waterfront YN
false
Zoning
PUD
Neighborhood Map
Popup

Property Photos
Listing Photo
Listing Photo
Listing Photo
Listing Photo
Listing Photo
Listing Photo
Listing Photo
Listing Photo
Listing Photo
Listing Photo
Listing Photo
Listing Photo
Listing Photo
Listing Photo
Listing Photo
Listing Photo
Listing Photo
Listing Photo
Listing Photo
Listing Photo
Listing Photo
Listing Photo
Listing Photo
Listing Photo
Listing Photo
Listing Photo
Listing Photo
Listing Photo
Listing Photo
Listing Photo
Listing Photo
Listing Photo
Listing Photo
Listing Photo
Listing Photo
Listing Photo
Listing Photo
Listing Photo
Listing Photo
Listing Photo
Listing Photo
Listing Photo
Listing Photo
Listing Photo
Listing Photo
Listing Photo
Listing Photo
Listing Photo
Listing Photo
Listing Photo
Listing Photo
Listing Photo
Listing Photo
Listing Photo
Listing Photo
Listing Photo
Listing Photo
Listing Photo
Listing Photo
Listing Photo
Listing Photo
Listing Photo
Listing Photo
Listing Photo
Listing Photo
Listing Photo
Listing Photo
Listing Photo
Listing Photo
Listing Photo
Listing Photo
Listing Photo
Listing Photo
Listing Photo
Listing Photo
Listing Photo
Listing Photo
Listing Photo
Listing Photo
Listing Photo
Listing Photo
Listing Photo
Listing Photo
Listing Photo
Listing Photo
Listing Photo
Listing Photo
Listing Photo
Listing Photo
Listing Photo
Listing Photo
Listing Photo
Listing Photo
Listing Photo
Listing Photo
Listing Photo
Listing Photo
Listing Photo
Listing Photo
Listing Photo
Listing Photo
Listing Photo

MLS #MFRG5108929 Listing courtesy of Keller Williams Elite Partners Iii Realty provided by Stellar MLS.

Similar Listings

$414,810
2713 Runners Circle
Clermont
3BR/2BA
| Active
$415,000
2905 Bluestem Lane
Clermont
3BR/2BA
| Active
$415,000
13303 Pinyon Drive
Clermont
3BR/2BA
| Active
$415,000
16780 Meadows Street
Clermont
3BR/2BA
| Active



All listing information is deemed reliable but not guaranteed and should be independently verified through personal inspection by appropriate professionals. Listings displayed on this website may be subject to prior sale or removal from sale; availability of any listing should always be independent verified. Listing information is provided for consumer personal, non-commercial use, solely to identify potential properties for potential purchase; all other use is strictly prohibited and may violate relevant federal and state law. The source of the listing data is as follows: Stellar MLS (updated 4/30/26 12:05 AM) |

Listing Search



Translate Tool

Featured Listings
Astatula Real Estate
$1,190,000
4 BED
3 BATH
Pre-Construction. To be built. LAKEFRONT LOT…**Experience lakefront living on the Harris Chain of Lakes in Astatula, Flo... Read More
Astatula Real Estate
$1,850,000
4 BED
3 BATH
Under contract-accepting backup offers. Welcome to a truly unique lifestyle estate offering exceptional privacy, natural... Read More
Astatula Real Estate
$548,990
4 BED
3 BATH
Pre-Construction. To be built. Introducing Stillwater Cove – A Brand-New Lakefront Community in Astatula, Florida! With ... Read More
Astatula Real Estate
$1,050,000
4 BED
4 BATH
Welcome to a truly rare custom-built estate offering strength, privacy, and lifestyle versatility on 12.1 acres in beaut... Read More
Astatula Real Estate
$619,990
4 BED
3 BATH
Under Construction. Introducing Stillwater Cove – A Brand-New Lakefront Community -Featuring ½-acre homesites, sidewalk-... Read More
Astatula Real Estate
$599,000
6 BED
3 BATH
LOOK no FURTHER, You have found a Beautiful 6 Bedroom 3 Bath Home Listed in the Beautiful Town of Astatula, NO HOA but a... Read More
Astatula Real Estate
$975,000
2 BED
1 BATH
Create your own private family compound on 25 acres of Lake County paradise. This property is fully agricultural-zoned a... Read More
Astatula Real Estate
$552,990
4 BED
3 BATH
Under Construction. Introducing Stillwater Cove – A New Lakefront Community in Astatula, Florida! Featuring ½-acre homes... Read More
Astatula Real Estate
$1,100,000
4 BED
4 BATH
Discover the perfect blend of upscale living and country tranquility with this exceptional 4-bedroom, 4-bathroom custom ... Read More
Clermont Real Estate
$569,900
3 BED
2 BATH
One or more photo(s) has been virtually staged. Wake up to golden sunrises shimmering across the water and begin each da... Read More
Contact Wendy Morris

407-575-5392

Wendy Morris LLC

Licensed in the State of Florida
BK 3146762
16797 Broadwater Avenue
Winter Garden, Florida 34787

Your privacy is our utmost concern. We will never sell your personal information. Privacy Policy
©2026 clermontluxuryproperty.com - all rights reserved. | Site Map