1-407-575-5392
Menu

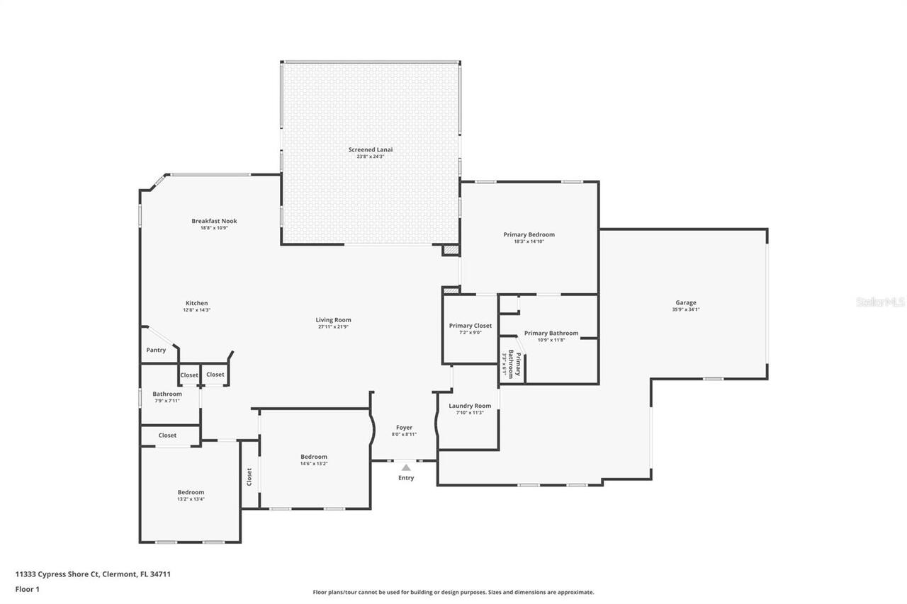
11333 Cypress Shore Court, Clermont, FL

NEXT
PREV
$560,000

($257/sqft)

List Status: Pending
11333 Cypress Shore Court
Clermont, FL 34711


3 beds
2 baths
2183 living sqft
Top Features
  • Subdivision: Susans Landing Ph 02
  • Built in  2012
  • Single Family Residence
Description
Property Details
Additional Information
Additional Lease Restrictions
Leasing restrictions have not been verified. It is buyer's responsibility to verify leasing restrictions with the HOA.
Additional Parcels YN
false
Alternate Key Folio Num
3782021
Appliances
Dishwasher, Disposal, Electric Water Heater, Microwave, Range, Refrigerator
Architectural Style
Florida
Association Email
rdrake@sentrymgt.com
Association Fee
650
Association Fee Frequency
Quarterly
Association Fee Requirement
Required
Association YN
true
Attached Garage YN
true
Available For Lease YN
1
Bathrooms Total Integer
2
Building Area Source
Public Records
Building Area Total
3474
Building Area Total Srch SqM
322.75
Building Area Units
Square Feet
Calculated List Price By Calculated SqFt
256.53
Carport YN
false
Community Features
Association Recreation - Owned, Deed Restrictions, Gated Community - No Guard
Construction Materials
Block, Stucco
Contract Status
Financing, Inspections
Cooling
Central Air
Country
US
Cumulative Days On Market
122
Current Price
560000.00
Direction Faces
East
Expected Closing Date
2026-02-10T00:00:00.000
Exterior Features
Rain Gutters
Fireplace YN
false
Flood Zone Code
X
Flood Zone Date
2012-12-18
Flood Zone Panel
12069C0570E
Flooring
Hardwood, Luxury Vinyl, Tile
Foundation Details
Slab
Furnished
Unfurnished
Garage Spaces
3
Garage YN
true
Heating
Central
Homestead YN
1
Interior Features
Ceiling Fans(s), Eat-in Kitchen, High Ceilings, Kitchen/Family Room Combo, Open Floorplan, Primary Bedroom Main Floor, Split Bedroom, Stone Counters, Walk-In Closet(s)
Internet Address Display YN
true
Internet Automated Valuation Display YN
true
Internet Consumer Comment YN
true
Internet Entire Listing Display YN
true
Laundry Features
Inside, Laundry Room
Lease Restrictions YN
1
Levels
One
List AOR
Lake and Sumter
Living Area Meters
202.81
Living Area Source
Owner
Living Area Units
Square Feet
Lot Features
Cul-De-Sac, In County, Sidewalk, Paved, Private
Lot Size Acres
0.31
Lot Size Square Feet
13522
Lot Size Square Meters
1256
Minimum Lease
6 Months
Modification Timestamp
2026-01-11T16:29:08.926Z
Monthly HOA Amount
216.67
New Construction YN
false
Num Of Own Years Prior To Lease
1
Num Times per Year
3
Occupant Type
Owner
Other Equipment
Irrigation Equipment
Ownership
Fee Simple
Parcel Number
01-23-25-1905-000-06900
Patio And Porch Features
Covered, Front Porch, Rear Porch
Pet Restrictions
Pet restrictions have not been verified. It is buyer's responsibility to verify pet restrictions with the HOA.
Pets Allowed
Yes
Pool Private YN
false
Postal Code Plus 4
6322
Price Change Timestamp
2026-01-08T21:26:29.000Z
Public Remarks
Under contract-accepting backup offers. This is the place you’ve been waiting to call home. Your opportunity to own a custom-built home in the established gated community of Susans Landing —in the heart of the highly desired Lakeshore area—where your neighborhood includes a private boat ramp and dock on the Clermont Chain of Lakes, just steps from your front door. Homes like this rarely come available, and when they do, they’re quickly spoken for. Instead of tight production neighborhoods with crowded streets, this community gives you room to breathe. Your home sits on a spacious third-acre cul-de-sac lot with a deep driveway, parking pad, and oversized 3-car garage, offering the space, comfort, and privacy that’s becoming harder to find. From the moment you step inside, you’ll feel how well this one-owner home has been cared for. You’ll enjoy large rooms, vaulted ceilings, and a natural indoor-outdoor flow. Your family room opens completely to the large screened lanai and pavered patio through four pocketing sliding doors, creating the perfect setting for evenings around a firepit, grilling, and gathering with friends—made simple with underground propane lines for both the fire and grill. Your kitchen is the heart of the home, overlooking the family and dining areas and featuring granite countertops, 42” solid wood cabinetry, stainless steel appliances, and pendant lighting over the breakfast bar. Retreat to your primary suite, where you’ll find a huge walk-in closet, dual vanities, makeup desk, glass-enclosed shower, and relaxing garden tub. You’ll also appreciate thoughtful details, including built-in surround sound inside and on the lanai, custom garage shelving, a dedicated workspace, laundry room with cabinetry and sink, generator switch hookup, security system with exterior cameras, and well irrigation to keep your lawn lush without high water bills. When you compare this home to most new production options, the difference is clear—more square footage, higher-caliber construction, a true neighborhood feel, and a better overall bang for your buck, plus the rare luxury of private access to the Clermont Chain of Lakes. Conveniently located in Clermont with easy access to shopping, dining, and attractions. This isn’t just a home—it’s a neighborhood and lifestyle you’ve been waiting for. Don’t miss it. Schedule your private showing before it’s gone.
Public Survey Range
25
Public Survey Section
01
Purchase Contract Date
2026-01-11
RATIO Current Price By Calculated SqFt
256.53
Road Surface Type
Asphalt
Roof
Shingle
Room Count
6
Senior Community YN
false
Sewer
Private Sewer
Showing Requirements
Supra Lock Box, Appointment Only, Gate Code Required, ShowingTime
Status Change Timestamp
2026-01-11T16:28:07.000Z
Tax Annual Amount
3901
Tax Block
000
Tax Book Number
39-86-88
Tax Legal Description
SUSAN'S LANDING PHASE II SUB LOT 69 PB 39 PGS 86-88 ORB 4199 PG 2028
Tax Lot
69
Tax Year
2025
Total Acreage
1/4 to less than 1/2
Total Annual Fees
2600.00
Total Monthly Fees
216.67
Township
23
Universal Property Id
US-12069-N-012325190500006900-R-N
Unparsed Address
11333 CYPRESS SHORE CT
Utilities
BB/HS Internet Available, Cable Connected, Electricity Connected, Fiber Optics, Sewer Connected, Sprinkler Well, Underground Utilities, Water Connected
Water Access
Lake, Lake - Chain of Lakes
Water Access YN
1
Water Body Name
LAKE SUSAN
Water Source
Public, Well
Waterfront YN
false
Years Of Owner Prior To Leasing Req YN
1
Zoning
PUD
Neighborhood Map
Popup

Property Photos
Listing Photo
Listing Photo
Listing Photo
Listing Photo
Listing Photo
Listing Photo
Listing Photo
Listing Photo
Listing Photo
Listing Photo
Listing Photo
Listing Photo
Listing Photo
Listing Photo
Listing Photo
Listing Photo
Listing Photo
Listing Photo
Listing Photo
Listing Photo
Listing Photo
Listing Photo
Listing Photo
Listing Photo
Listing Photo
Listing Photo
Listing Photo
Listing Photo
Listing Photo
Listing Photo
Listing Photo
Listing Photo
Listing Photo
Listing Photo
Listing Photo
Listing Photo
Listing Photo
Listing Photo
Listing Photo
Listing Photo
Listing Photo
Listing Photo
Listing Photo
Listing Photo
Listing Photo
Listing Photo
Listing Photo
Listing Photo
Listing Photo
Listing Photo
Listing Photo
Listing Photo
Listing Photo
Listing Photo
Listing Photo
Listing Photo
Listing Photo
Listing Photo
Listing Photo
Listing Photo
Listing Photo
Listing Photo
Listing Photo
Listing Photo
Listing Photo
Listing Photo
Listing Photo
Listing Photo
Listing Photo
Listing Photo
Listing Photo
Listing Photo
Listing Photo
Listing Photo
Listing Photo
Listing Photo
Listing Photo
Listing Photo
Listing Photo
Listing Photo
Listing Photo
Listing Photo
Listing Photo
Listing Photo
Listing Photo
Listing Photo
Listing Photo
Listing Photo
Listing Photo
Listing Photo

MLS #MFRG5106096 Listing courtesy of Keller Williams Elite Partners Iii Realty provided by Stellar MLS.

Similar Listings

$504,630
5660 Swaying Blossom Alley
Clermont
3BR/2BA
| Active
$509,000
16329 Sanctuary Reserve Loop
Clermont
3BR/2BA
| Active
$509,995
13319 Via Roma Circle
Clermont
3BR/2BA
| Active
$514,000
10521 Via Lugano Court
Clermont
3BR/2BA
| Active



All listing information is deemed reliable but not guaranteed and should be independently verified through personal inspection by appropriate professionals. Listings displayed on this website may be subject to prior sale or removal from sale; availability of any listing should always be independent verified. Listing information is provided for consumer personal, non-commercial use, solely to identify potential properties for potential purchase; all other use is strictly prohibited and may violate relevant federal and state law. The source of the listing data is as follows: Stellar MLS (updated 1/11/26 5:46 PM) |

Listing Search



Translate Tool

Featured Listings
Astatula Real Estate
$975,000
2 BED
1 BATH
Astatula Real Estate
$1,940,000
5 BED
2 BATH
Astatula Real Estate
$650,000
4 BED
4 BATH
Astatula Real Estate
$599,000
6 BED
3 BATH
Astatula Real Estate
$631,990
4 BED
3 BATH
Astatula Real Estate
$1,190,000
4 BED
3 BATH
Astatula Real Estate
$999,000
5 BED
5 BATH
Astatula Real Estate
$552,990
4 BED
3 BATH
Astatula Real Estate
$548,990
4 BED
3 BATH
Clermont Real Estate
$549,900
4 BED
3 BATH
Contact Wendy Morris

407-575-5392

Wendy Morris LLC

Licensed in the State of Florida
BK 3146762
16797 Broadwater Avenue
Winter Garden, Florida 34787

Your privacy is our utmost concern. We will never sell your personal information. Privacy Policy
©2026 clermontluxuryproperty.com - all rights reserved. | Site Map